Не входит в базовую комплектацию, рассчитывается в индивидуальном порядке.
ПРОЕКТ ДОМА ИЗ БРУСА КД-171
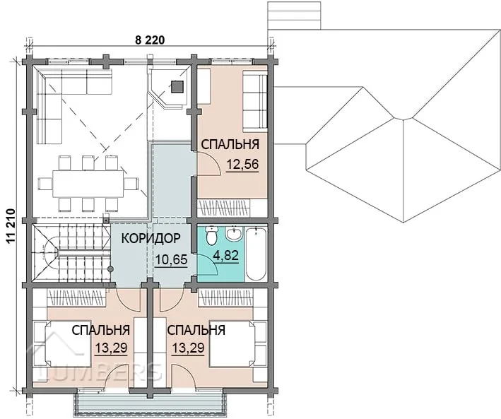
Строим дома под ключ! полностью готовый брусовой дом с чистовой отделкой- Общая площадь:168,6 м2
- Материал стен: профилированный брус
- Толщина стены:200 мм
- Полезная площадь:106,4 м2
- Этажность1,5
- Площадь первого этажа113,99 м2
- Площадь мансарды54,61 м2
- Флигель21,19 м2
- Кухня9 м2
- Крыльцо терраса8,98 м2
- Санузлы2
- Спальни4
- Ценаот 168 000
- В цену входит
- Архитектурный проект
- Комплект стен и пиломатериалов
- Комплект крепежа и межвенцевого утеплителя для монтажа строения
- Комплект кровельного покрытия: гибкая черепица, доборные элементы, гидроизоляционная мембрана, крепежная фурнитура
- Монтаж стен
- Монтаж стропильной системы
- Монтаж кровельного покрытия
- Доработка проекта и изменение планировки - бесплатно
В СТОИМОСТЬ ВКЛЮЧЕНО
Комплектация
-
Фундамент
-
Каркасные перегородки
Сборка каркасных перегородок производится на втором этапе строительства дома.
-
Мягкая кровля- Кровельное покрытие
- Подкладочный ковер
- OSB
- Обрешетка
- Контробрешетка
- Гидроизоляция
- Утеплитель
- Стропильная нога
- Пароизоляция
- Контробрешета
- Потолочная панель
-
Металлочерепица- Металлочерепица
- Обрешетка
- Контробрешетка
- Гидроизоляция
- Стропильная нога
- Утеплитель
- Пароизоляция
- Контробрешета
- Потолочная панель
-
Керамическа черепица- Керамическая черепица
- Обрешетка
- Контробрешетка
- Лента резиновая
- Гидроизоляция
- Сплошной настил
- Стропильная нога
- Утеплитель
- Пароизоляция
- Потолочная панель
-
Деревянное перекрытие- Покрытие пола
- Гидроизоляция
- Утеплитель
- Пароизоляция
- Балка перекрытия
- Черновая доска
- Черепной брусок
-
Перекрытие по бетону- Керамическая плитка
- Клей
- Чистовая стяжка
- Отопление
- Утеплитель
- Выравнивающий слой
- Черновая стяжка
-
Каркасная перегородка- Имитация бруса
- Контробрешетка
- Пароизоляция
- Утеплитель
- Стойки
- Контробрешетка
-
Оцилиндрованное бревно- Оцилиндрованное бревно естественной влажности или камерной сушки
- Покрытие маслом Osmo
-
Профилированный брус- Профилированный брус естественной влажности или камерной сушки.
- Покрытие маслом Osmo
-
Окна -
Двери -
Фундамент- Монолитная плита
- Монолитный ростверк
- Свая
Дополнительные услуги
Описание проекта
Стоимость первого этапа работ включает:
- Архитектурный проект
- Комплект стен и пиломатериалов
- Комплект крепежа и межвенцевого утеплителя для монтажа строения
- Комплект кровельного покрытия: гибкая черепица, доборные элементы, гидроизоляционная мембрана, крепежная фурнитура
- Монтаж стен, стропильной системы и кровельного покрытия
Как мы работаем
С Вами связывается наш менеджер и уточняет детали заказа
Прораб предоставит вам оригиналы договора подряда для подписания. Вы оплачиваете 40% стоимости объекта
Вы оплачиваете 2-ю часть, 40% стоимости объекта . Домокомплект и весь остальной материал доставляется к вам на участок
Производим весь комплекс строительных и отделочных работ по договору
Вы принимаете работу и подписываете акт сдачи-приемки
На месте производится доплата оставшихся 20% стоимости строительства
Наш менеджер ответит вам через 3 минуты












